レーベンハイム板橋フィーリア/3階・2SLDK・62.98㎡/北区/販売中
| 販売価格 | 8,499万 |
|---|---|
| 管理費 | 15,710円/月 |
| 修繕積立金 | 16,440円/月 |
| 所在地 | 東京都北区滝野川6-74-7 |
| 交通 | 埼京線「板橋」駅徒歩5分 都営三田線「新板橋」駅徒歩5分 |
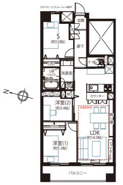
| 専有面積/バルコニー面積 | 62.98㎡/7.54㎡ |
| 築年月(築年数) | 平成16年12月(2004年12月) |
| 総戸数 | 37戸 |
| 所在階/階建 | 3階/6階 |
| 構造 | 鉄筋コンクリート造 |
| 土地権利 | 所有権 |
| 分譲会社 | タカラレーベン |
| 施工会社 | 川田工業|新英興業 |
| 管理会社 | (株)レーベンコミュニティ |
| 管理形態 | 全部委託(巡回) |
| 登録日 | 2026/1/16 |
おすすめポイント
新規リノベーション物件。仲介手数料は無料でご案内可能です。平成16年築、オートロック・宅配ボックス完備、ペット飼育可能なマンションです。南西向き・日当たり良好。逆張り工法、梁がなく綺麗で使いやすい間取りです。浄水器・食洗器・浴室乾燥機・ウォシュレット・追い焚き機能です。埼京線「板橋」駅徒歩5分、都営三田線「新板橋」駅徒歩5分、2路線が徒歩5分以内。家具・エアコン付き、アフターサービス保証付きです。