板橋区小豆沢 本蓮沼駅徒歩9分 中古マンション 2階49.40㎡ 2LDK|キャニオンマンションあずさわ
| 販売価格 | 2,000万~2,500万 |
|---|---|
| 管理費 | 6,500円/月 |
| 修繕積立金 | 9,500円/月 |
| 所在地 | 東京都板橋区小豆沢1-6-18 |
| 交通 | 都営三田線「本蓮沼」駅徒歩9分 都営三田線「志村坂上」駅徒歩10分 |
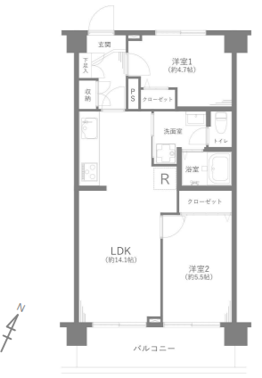
| 専有面積/バルコニー面積 | 49.40㎡/7.52㎡ |
| 築年月(築年数) | 昭和53年9月(1978年9月) |
| 総戸数 | 45戸 |
| 所在階/階建 | 2階/6階 |
| 構造 | 鉄筋コンクリート造 |
| 土地権利 | 所有権 |
| 分譲会社 | 有村建設(株) |
| 施工会社 | 有村建設(株) |
| 管理形態 | 自主管理 |
| 登録日 | 2026/2/25 |
おすすめポイント
「キャニオンマンションあずさわ」は、都営三田線「本蓮沼」駅徒歩9分、板橋区小豆沢1丁目の落ち着いた住宅街に位置する中古マンションです。都営三田線「志村坂上」駅も徒歩圏にあり、都心方面への通勤・通学にも便利なアクセス環境が整っています。
専有面積49.40㎡・2階部分の2LDKは、単身者からDINKS、小さなお子様のいるご家庭まで対応できる使い勝手の良い間取りです。LDKを中心に各居室の独立性が保たれており、生活動線が整いやすく、日常生活を快適に送ることができます。
南東向き住戸につき採光・通風良好で、明るく快適な室内空間が広がります。周囲は落ち着いた住宅環境のため、静かで安心感のある暮らしが期待できます。
本物件は 仲介手数料無料でご案内可能 です。購入時の大きな負担となる初期費用を抑えることで、家具・家電やインテリアなど新生活に必要な設備へ予算を充てることができます。
また、室内はリフォーム・リノベーションによる空間づくりにも対応しやすく、ライフスタイルに合わせた住まいづくりが可能です。自分らしい住空間を実現したい方にもおすすめです。
周辺にはスーパーやコンビニ、ドラッグストアなど生活利便施設が徒歩圏内に揃い、日常の買い物を身近に済ませられる住環境も魅力の一つです。
「駅徒歩圏 × 生活利便性 × 柔軟な間取り × 仲介手数料無料」という条件が揃う一邸として、利便性と住みやすさのバランスを重視する方におすすめの住まいです。